「鄧麗君故居」上載樓書面積7295呎

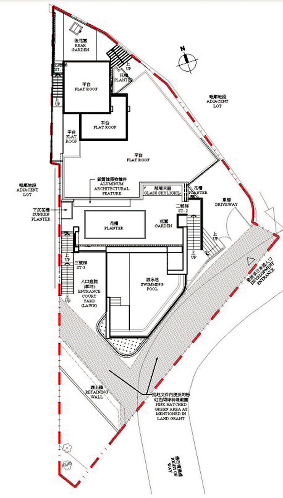
●赤柱佳美道18號獨立屋平面圖。
●赤柱佳美道18號獨立屋平面圖。

  香港文匯報訊(記者 梁悅琴)近期豪宅交投暢旺,發展商及業主紛紛推售豪宅新盤。已故歌手鄧麗君故居、早前由「賭王」何鴻燊二房的次女何超鳳前夫何志堅等人委託測量師行放售的赤柱佳美道18號獨立屋昨日上載售樓書,面積7,295方呎,連2,453方呎花園及381方呎庭院等。市場估計市值約5.9億元,呎價約8萬元。

  設6間套房 斜坡或需自費維修

  售樓書顯示,該獨立屋連地庫共4層高,連庭園及泳池,1至2樓共設6間套房,地庫設兩個車位,設有升降機連接各層。樓書亦列明,項目所在位置有斜坡,買家或需承擔保養及維修費用,並需自費保養及維修電纜槽、排水渠、水管及維修用樓梯等。

  資料顯示,鄧麗君的故居早於1953年建成,其於1988年以700萬元購入,翌年與男友保羅入住。鄧麗君1995年逝世後,故居及相關遺物交由鄧麗君文教基金會保管,但因日久失修,物業其後放售,並由何超鳳及何志堅於2004年以3,180萬元購入重建,二人2016年離婚後,由何志堅持有,物業於2020年重建完成,如今放售要根據一手條例來出售。

  另一邊廂,太古地產夥中華汽車合作的柴灣常安街「海德園」部署明年推售,太古地產住宅業務董事杜偉業昨表示,項目仍待批預售樓花同意書中,預計明年推售。該盤由三座大樓組成,提供850伙,涵蓋一房至四房,面積400方呎至2,900方呎,預計明年可獲批首張入伙紙。

  文曜擬推新一批兩房戶應市

  建灝地產集團投資及銷售部董事鄭智荣表示,計劃即將推出九龍城「文曜」新一批B單位兩房戶應市。他指,該盤昨以1,160.2萬元售出8樓A室兩房單位,面積635方呎,呎價18,270元,買家為專才人士,購入作長綫投資。

  成交方面,新地旗下啟德天璽·天昨招標售出8伙,成交額由1,100萬至7,036.33萬元,成交呎價由24,289至35,305元。